高知 香南市野市町 岩城建築設計事務所/M I タウン企画部 - TIP構法・耐震・ローコスト住宅 M I ハウス お問い合わせ・資料請求
岩城建築設計事務所/MIタウン企画部 会社概要 イベント情報 新築事例 リフォーム事例 古民家「ときめき」再生
岩城建築設計事務所:TOP > 新築事例 > 新築事例:A邸
新築事例

新築事例:B邸/明るいリビングで家事が楽しくなる家タイプ:ろまん

新築事例写真

写真 新築事例写真:サムネイル 新築事例写真:サムネイル 新築事例写真:サムネイル ←写真をクリックすると拡大写真が表示されます。

お客様の声
南向きで太陽の光をいっぱいに取り込むことのできる素敵な我が家です。暗くなりがちなキッチンは上部の吊戸棚を設けずに北面の壁につけました。広さも私達家族にはピッタリの間取りです。台所から洗面所・浴室へと一直線に動けてむだな動きがなく、快適に住んでいます。

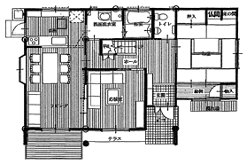
住宅面積
  平方メートル
1階床面積 83.63 25.29
2階床面積 56.31 17.03
延べ床面積 139.94 42.33
敷地面積 347.15 105.11

平面図
新築事例:平面図

  事例一覧/CASE LIST
新築事例TOP(M邸)
新築事例:F邸 新築事例:F邸
自給自足の徳王子の家

住宅仕様/木香
-
新築事例:A邸 新築事例:A邸
水害と地震に備えた安心できる家

住宅仕様/木香
-
新築事例:B邸 新築事例:B邸
明るいリビングで家事が楽しくなる家

住宅仕様/ろまん
-
新築事例:C邸 新築事例:C邸
ずっといたい木の香かおるこだわりの大空間

住宅仕様/勇木
-
新築事例:D邸 新築事例:D邸
明るい開放感のある対話のはずむ家

住宅仕様/勇木
-
新築事例:E邸 新築事例:E邸
ガレージとロフトのある休日の楽しい家

住宅仕様/木香
-
新築事例:F邸 新築事例:F邸
木の温もりの多目的リビングのある家

住宅仕様/木香
-
新築事例:O邸 新築事例:O邸
光る海にのぞむ手造りキッチンの家

住宅仕様/木香
-
新築事例:W邸 新築事例:W邸
天窓付のロフトのある風通しのいい家

-
新築事例:N邸 新築事例:N邸
地熱利用で24時間快適な家

-
過去の新築事例 過去の新築事例
-

イメージ
* CAD・手書パース住宅イメージ
-
イベント情報
* 住宅見学会などのご案内
-
リフォーム事例
* 住宅リフォーム事例
-
 

岩城建築設計事務所:TOP 会社概要イベント情報 | 新築事例 | リフォーム事例設計監理 | 中古物件 | 土地情報 【アクセスマップ】
サイトマップ リンク E-MAIL お問い合わせ・資料請求
COPYRIGHT (C) IWAKI ARCHITECTS ASSOCIATES CO.,LTD. ALL RIGHTS RESERVED.

株式会社 夢ハウス 日本TIP建築協会 P.V.ソーラーハウス協会