



 |
|
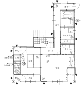
living room■ |
 |
|
■relax room |
 |
■rest room
|
|
wash room■ |
|
今住んでいる家が、軽量鉄骨の家なので、老後は木の香りの中でゆったりとした生活がしたくて、MIさんにお願い
しました。内装も木と自然(花や草木や鳥)のイメージでとても気に入っています。
普通の和風住宅とは違って、個性的な感じに仕上がっています。地熱利用と蓄熱式暖房器もとても期待して
います。楽しみです。 |
|
 |
 |
 |
| |
増築部分 |
| 平方メートル |
坪 |
| 1階床面積 |
69.00 |
20.87 |
| 延べ床面積 |
69.00 |
20.87 |
| 建築面積 |
69.00 |
20.87 |
| 敷地面積 |
411.11 |
124.36 |
|
| □ 社長のこだわり□ |
当社の商品、省エネ・エコ住宅 土佐の民家『ときめきの家』の自信作です。自然エネルギーを使い、省エネで24時間全室快適空間と併せて、花粉症やアレルギー症患対策の空気清浄機を有しております。
また、自然の間伐材を使った耐震補強や、地熱や太陽光などを活用して、省コスト高機能の健康住宅として完成させた、木の香りに包まれた、心安らぐ和風住宅です。 |
| |

|
|

|
|
|