

 

 |
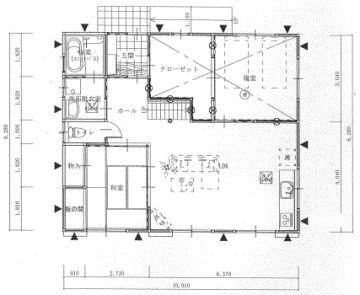
■living&dining |

 |
|
 |
|
|
| ■tatami corner |
|
■kitchen
|
|
■stairs |

| 木の家がいいという事でMIタウンさんに決めました。又、「古い物を大事に」という考えにも共感しました。自然の中で子供を育てたいという思いから、この場所に決めました。日当りがあまり良くない立地条件でしたが、ロフトの天窓と東側の窓が光を運んでくれ、明るい家になりました。木の色合いも室内を明るくしてくれます。梁が見える高い天井も開放的でリビングが広く見え、風通しもすごくいいです。生活していく中で、子供が梁にさわって遊んだり、使い方を考えていくのもすごく楽しみです。家の外も中も自然がいっぱいです。 |
|

| |
平方メートル |
坪 |
| 1階床面積 |
83.13 |
25.14 |
| 2階床面積 |
16.56 |
5.01 |
| 延べ床面積 |
99.69 |
30.15 |
| 建築面積 |
83.13 |
25.14 |
| 敷地面積 |
302.09 |
91.38 |
|
|
|
|