

 

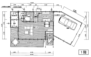
■living&dining
|

 |
|
 |
|
 |
■living
|
|
■kitchen
|
|
■bath room
|
 |
|
 |
|
 |

| TIP構法で台風や地震にも強く、大きな柱も使っているので大安心です。リビングからは大好きな車を置いてあるガレージの中が見え、大きな窓とかわいい丸窓をつけているお風呂からは、太平洋を眺めながら入浴ができるんです。そしてキッチンはシステムキッチンではなく、大工さん手作りのオシャレなキッチン!お料理するのも楽しみだし、何よりも早く生活できる日が待ち遠しい毎日です。 |
|

| |
平方メートル |
坪 |
| 1階床面積 |
92.15 |
27.88 |
| 2階床面積 |
52.17 |
15.78 |
| 延べ床面積 |
144.32 |
43.66 |
| 建築面積 |
95.46 |
28.88 |
| 敷地面積 |
445.32 |
134.7 |
|
|
|
|