
 |
 |
| the exterior 外観 |
entry hall 玄関 |
 |
 |
 |
| living リビング |
living リビング |
second floor 二階 |
 |
 |

もともと古民家再生というものに興味があり、MIタウン企画部さんを知りました。お話を聞いていくうちに、木の温かみのあるMIタウン企画部さんの、木づくりの家にひかれました。社長さん、スタッフの人柄も良く、新しいお家に住むことをとても楽しみにしております。 |
|
| second floor 二階 |
Balcony バルコニー |
|
| |

| |
増築部分 |
| 平方メートル |
坪 |
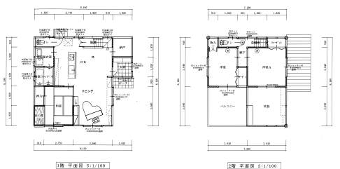
| 1階床面積 |
66.24 |
20.03 |
| 2階床面積 |
33.12 |
10.01 |
| 延床面積 |
99.36 |
30.05 |
| 建築面積 |
66.24 |
20.03 |
|
|
|
 |
|
|